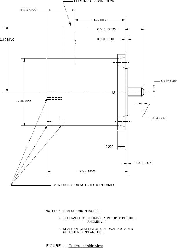
MIL-PRF-26611 Generator, Tachometer Geu-7/A, MiniatureThis specification defines a miniature, electric, two-pole, ac tachometer generator for use in generating electrical signals for transmission to aircraft indicating instruments.